İZMİR / menderES
YALINSU FABRİKA
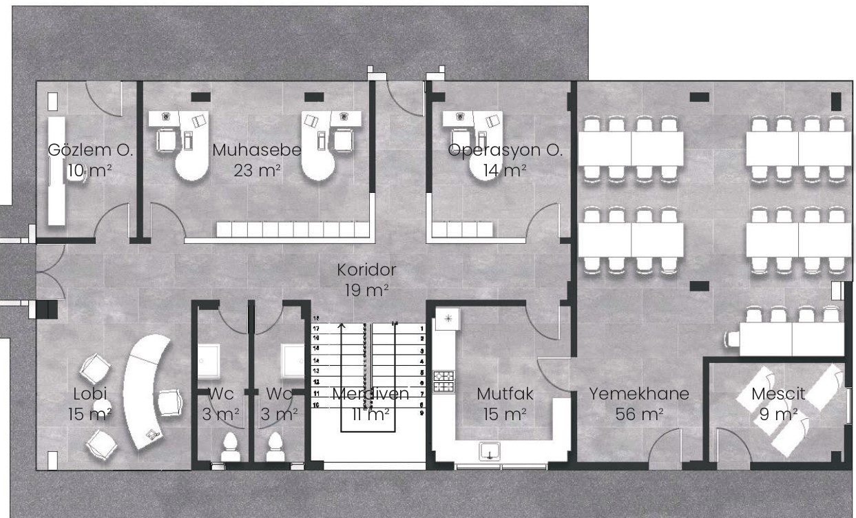
Yalınsu Geri Dönüşüm markasının İzmir’de yeni kurulan fabrikası için iki katlı bir yönetim binası planlanmıştır. Yapı; gözlem odası, personel çalışma odaları, yemekhane, toplantı odası, müdür ve yönetici odalarından oluşmaktadır.
Personel çalışma alanları kantarı görecek şekilde, müdür ve yönetici odaları ise üretim alanına hâkim olacak biçimde konumlandırılmıştır. Girişte resepsiyon alanı yer almakta olup, üst katta toplantı odası ve çalışanların ortak kullanımına açık dinlenme alanı bulunmaktadır.
2 KATLI
Zemin + Üst Kat
446 m²
223 m² + 223 m²
BETONARME YAPI
ÜST KAT PLANI
223 m²



Profesyonel Mimari Desteğe Hemen Başvurun
Profesyonel mimari desteğe mi ihtiyacınız var?
Hemen AC Yapı Mimarlık’a başvurun ve modern tekniklerle hayalinizdeki tasarıma kavuşun.
AC Yapı Mimarlık
Bu sayfadaki bilgi ve görsellerin her hakkı saklıdır, izinsiz kullanılamaz.


